NEW BUILD - PREMIUM MANGAWHAI RESIDENCE
Price by negotiation
Lot 3, 582 Barrier View Road, Mangawhai
- 4
- 2
- 1
- 5
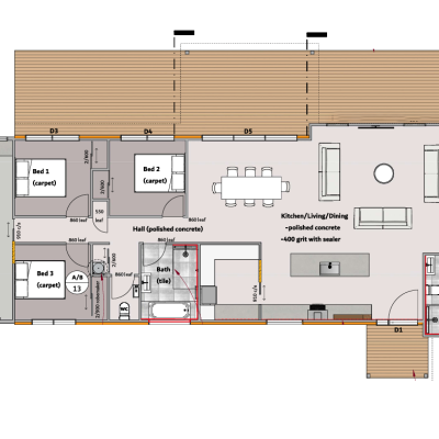
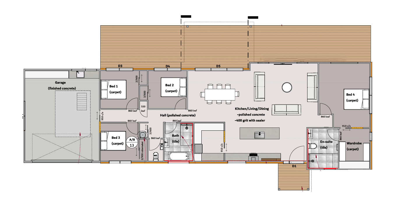
- House - 223 sqm
- 4,000 sqm section
Discover a stunning brand-new, architecturally designed home set on an impressive 4,000sqm section in the highly sought-after beach destination of Mangawhai. Designed as a luxury new build, this beautifully crafted residence blends refined modern design with relaxed Mangawhai lifestyle. Generous spaces, high-end finishes, and effortless indoor–outdoor flow create a home that celebrates the breath-taking elevated rural surroundings.
Property details.
- VIEW BY APPOINTMENT
- Contact Duncan Northcott
- Contact Duncan
- Call Duncan - 021 269 3137
- Email Duncan
Favourite features
Expansive 4,000sqm section
Brand New architecturally designed home
Expansive Decking with Stunning rural outlook
Double internal access garage
Mangawhai
Mangawhai is a coastal paradise that combines stunning beaches, a vibrant community, and a relaxed lifestyle. Known for its breathtaking harbor, surf beaches, and scenic walking tracks, it’s perfect for outdoor enthusiasts and nature lovers.
The town offers a thriving arts scene, excellent cafés, and a strong sense of community, making it ideal for families and retirees alike. With its growing amenities and proximity to Auckland, Mangawhai provides the perfect balance of coastal living and convenience.
FALL FURTHER IN LOVE
MORE INFORMATION
Currently under construction, the 223sqm home showcases sleek contemporary lines, premium finishes, and a thoughtfully designed layout tailored for modern living. The private master suite features a spacious walk-in wardrobe and a luxurious ensuite, while three generous additional bedrooms are serviced by a stylish, modern family bathroom.
The heart of the home is the light-filled open-plan living area, featuring a bespoke designer kitchen with walk-in scullery and dining space, while the living space flows seamlessly onto an expansive north-facing deck – perfect for entertaining or relaxing after a day at the beach.
Built with comfort and quality in mind, this turnkey home includes double internal access garaging, energy-efficient double glazing, high-quality insulation, feature cladding, bespoke kitchen, large attic storage, full fencing, automated gate, concrete driveway, and an expansive outdoor deck.
The generous section provides endless opportunities—perfect for landscaped gardens, an orchard, storing the boat or other recreational toys, or simply enjoying space and privacy in a coastal lifestyle.
Located just minutes from Mangawhai Heads surf beach, local shops, cafés, and excellent schools including Mangawhai Hills College, this exceptional property delivers the ultimate luxury new build.
Secure your place in one of Northland’s most desirable beach communities and make this modern Mangawhai retreat your own.
Enquire about this property
Simply fill out the form below to find out more about this property










